S
P
service and artist Building
Taiyuan, China
Timeframe 2020
Client Qianyuan Kultur Kommunikation Ltd
Typology Office
Status BUILT
Budget ca. 8m eur
SURFACE 4028 sqm
Architect Sterling Presser
Local Architect SOL

Service and Artist Building
Taiyuan, China
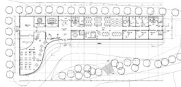
The main challenge was to create a unique “roof” that can be read as one flow, following the same principles as the entrance park bridge design. The building is a complex program that is composed as one shape. It enables a seamless organization between the management and the artists that come for a short period before they perform to the main theatre facilities.
Furthermore, the project is designed within the site-specific constraints of the plot along a highway as a L shape building. However, the project shape is expressing the idea of continuity transforming the L shape into one curve. It does “peel” step by step creating a horizontal pattern expressed by the windows and external brick façade rhythm. The gradient curve is creating a unique gesture that welcome the visitors that they can immediately recognize. The movement is as well expressed gradually in the landscape and accesses. Therefore, this makes the landscape blend easily with the building and its immediate environment. It creates as well a resonance with the water theatre principles.
Also, the functional building is as well exploring the 5th façade of the roof as an integrated part. The public can access to the stepping green terraces that create a harmonic and dynamic composition. It is as well an extended outdoor facility that enables pause and break, and very appreciated by the artists when they visit the “service building”. The terraces aimed as well at being a sustainable feature, providing thermal mass and water retention.
The project optimizes as well transparency at the ground level so that the new visitors can orientate themselves intuitively.
In short, the service building is a creative and functional “house” that connects its exceptional users to the water subliminal and magic world.












Sterling Presser
Architects Engineers PartGmbB
BERLIN, Germany