S
P
Karlsruhe Klinikum Covered Footbridge
KARLSRUHE, Germany
Timeframe 2020
Client Städtische Klinikum Karlsruhe gGmbH
Typology FOOTBRIDGE
status competition - final round
Budget ca. 800 000 EUR
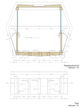
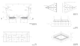
maximum Span 35 m, LENGTh 48 m, Width 3 m
material steel & timber
Architect & Engineer Sterling Presser
Structural Engineer FHECOR Ingenieros Consultores, Madrid
Rendering SOL
3D PRINTING XTRUDE.BERLIN


Karlsruhe Klinikum Covered Footbridge
Karlsruhe, Germany
Karlsruhe Klinikum Covered Footbridge is part of Municipal Hospital. It is a large hospital facility and the largest hospital in the "Mittlerer Oberrhein" region and as well as a teaching hospital of the University of Freiburg. Every year, around 185,000 outpatients and over 63,000 inpatients are treated in the hospital by around 4,300 employees.
However, due to the increased number of staff and treatments as well as an infrastructure that is no longer up to date, extensive structural changes are also planned for the coming years. It is planned to erect a new helicopter landing platform as a free-standing structure on the open space in front of the building.
The element of the current competition relates to the development of the bridge connection between the helicopter platform and the Helios Clinic. It is planned to further develop the bridge to connect the platform with Haus R Radiology.















Sterling Presser
Architects Engineers PartGmbB
BERLIN, Germany